BROOKLYN

DREAM BROOKLYN ROW HOME

You know how there are just some people who are born with amazing talent. Well, Athena Calderone just so happens to be one of those amazing people. It seems that everything she touches turns to gold. It is appropriate that her life style brand is called EYE SWOON , she has a true visual talent. I have been following her since the beginning of  her career and have enjoyed seeing her blossom throughout the years. Athena has a cookbook ‘Cook Beautiful’ which I recommend checking-out. Every recipe that I have attempted from it has been met with nothing but high praise. A few years ago, she and her husband purchased a row home in Cobble Hill, Brooklyn NYC. For three years it was under construction and the Calderone’s just recently unveiled their masterpiece in Architectural Digest.  They enlisted the help of Architect Elizabeth Roberts to bring their dreams into fruition. Check it out!

KITCHEN 2KITCHEN INSPO

Athena’s kitchen inspiration 

KITCHEN 1KITCHEN WITH ATHENA

Athena Calderone in her Brooklyn kitchen

PATIO

The porch just off the kitchen

SKETCH 3

Sketch of the kitchen

COOK BOOK

Athena’s James Beard Award winning cookbook

COOKING

Above and Below are dishes from the cookbook

COOKING 2DINING ROOM

Dining Room- AFTER

BEFORE

Dining and living room – BEFORE

INSPIRATION

Above and below are the living room design inspiration

INSPIRATION 2SKETCH

Sketch of the living room

LIVING ROOM

Living room – AFTER

ENTRY INSPO

Entry way inspiration

ENTRY

Current entry way

STIARS

Staircase

SONS ROOM

Her son’s bedroom

OFFICE

Athena’s office

BEDROOM

The master bedroom

CLOSET

The master closet

BATHROOM 1

Master bath

BATHROOMFAMILY ROOM

Informal living room with custom plaster

EXTERIOR

Exterior

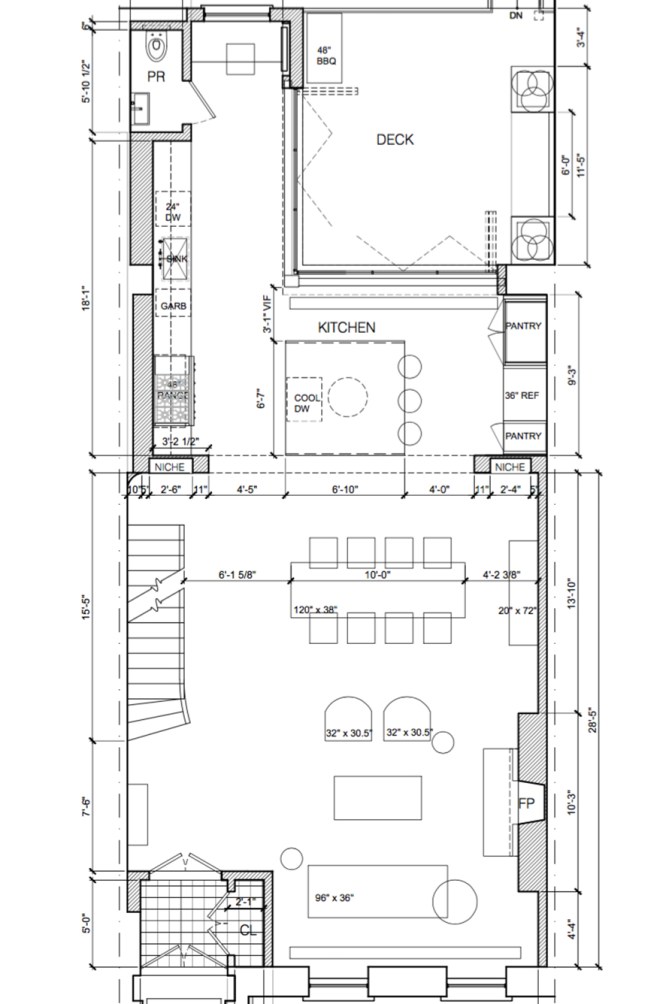
FLOOR PLAN

1st floor- floor plan (unfortunately I could not find the floor plan for the rest of the row home)