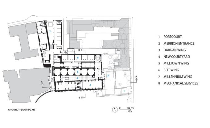
To commemorate St. Patrick’s Day, here is the newly renovated National Gallery of Ireland by Heneghan Peng Architects. HP Architects were chosen for this six year renovation project after having been recognized for their work on the Grand Egyptian Museum and the Palestinian Museum. They successfully addressed the circulation issues the gallery was having, unearthed windows that were bricked for decades bringing in much needed light, as well as introducing light into buildings via new modern skylights. They have done a true job of preserving the past and beautifully introducing the new.

Past- Entrance
Today’s- Entrance
Entrance Hall- newly added skylight with light reflecting off the opposing white wall



Past- Main Hall
Today’s- Main Hall
Past
Today



















